




$279,970
2103 Morgan Hills Drive
Albemarle, NC 28001
About This Property
This Property Has Been Sold
This property sold 1 year ago and is no longer available for purchase.
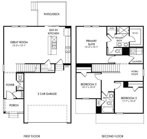
View active listings in Morgan Hills →Brand new, energy-efficient home available by Sep 2024! Work from home or designate a homework space in the second-story study. Down the hall, the spacious primary suite boasts dual sinks and a walk-in closet.
Downstairs, the open-concept layout is accented with a convenient powder room and back patio. Morgan Hills offers a series of two-story, energy-efficient homes in Albemarle,NC. Enjoy hiking, fishing and water sports at nearby Uwharrie National Forest or Lake Tillery before ending the day at one of the many stunning wineries.
Just minutes away, downtown Albemarle is home to plenty of local shops and dining options, perfect for the whole family. Schedule a tour today of our model home to see all the benefits of a new home in Albermarle. Each of our homes is built with innovative, energy-efficient features designed to help you enjoy more savings, better health, real comfort and peace of mind.
CAR MLS # 263157725
Quick Facts
Time on Site
2 years ago
Property Type
Residential
Year Built
2024
Price/Sq.Ft.
$183
Property Details
Schools
Features & Amenities
Features:
- Attic Stairs Pulldown
- Kitchen Island
- Open Floorplan
- Pantry
- Walk-In Closet(s)
- Walk-In Pantry
Location & Map
Map View
Loading map...
Additional Information
Utilities
- Public Sewer
- City
Lot And Land
Agent Contacts
- Palmetto Park Realty Team Fort Mill: 803.548.6123
Interior Details
- Central
- Fresh Air Ventilation
- Heat Pump
- Carpet
- Tile
- Vinyl
- Inside
- Attic Stairs Pulldown
- Kitchen Island
- Open Floorplan
- Pantry
- Walk-In Closet(s)
- Walk-In Pantry
Exterior Features
- Composition
- Brick Partial
- Cedar Shake
- Shingle/Shake
- Stone Veneer
- Vinyl
Parking And Garage
- Attached Garage
Financial Information
Dwelling And Structure
- Low VOC Coatings
- Spray Foam Insulation
Basement And Foundation
- Slab
Zoning And Restrictions
Square Footage And Levels
- Two
Additional C A R Information
- Architectural Review
- Modular Not Allowed
IDX information is provided exclusively for consumers' personal, non-commercial use only; it may not be used for any purpose other than to identify prospective properties consumers may be interested in purchasing. Data is deemed reliable but is not guaranteed accurate by the MLS GRID. Use of this site may be subject to an end user license agreement. Based on information submitted to the MLS GRID as of Tue, Mar 18, 2025. All data is obtained from various sources and may not have been verified by broker or MLS GRID. Supplied Open House Information is subject to change without notice. All information should be independently reviewed and verified for accuracy. Properties may or may not be listed by the office/agent presenting the information. Some IDX listings have been excluded from this website. Any use by you of search facilities of data on the site, other than by a consumer looking to purchase real estate, is prohibited. DMCA Notice: Palmetto Park Realty respects the intellectual property rights of others. If you believe that your work has been copied in a way that constitutes copyright infringement, please provide our designated agent with written notice containing the following information: (1) identification of the copyrighted work claimed to have been infringed; (2) identification of the material that is claimed to be infringing; (3) your contact information; (4) a statement that you have a good faith belief that use of the material is not authorized; and (5) a statement that the information in the notification is accurate and you are authorized to act on behalf of the copyright owner. Please send DMCA notices to: [email protected]
You Might Also Like...
Interested in selling in Morgan Hills?