





2058 Mcguire Lane 015 in Stono Village, Hollywood, SC
2058 Mcguire Lane 015, Hollywood, SC 29449
$549,900
$549,900
Does this home feel like a match?
Let us know — it helps us curate better suggestions for you.
Property Highlights
Bedrooms
3
Bathrooms
3
Property Details
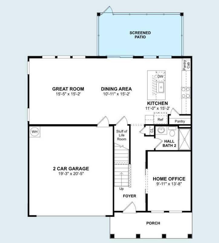
Welcome to the Fayetteville floorplan on Homesite 15 in Stono Village, a thoughtfully designed two-story home offering 3 bedrooms, 3 full baths, and 2,307 sq ft of beautifully curated living space, designed with our sophisticated Loft palette.Step into an airy, open-concept main floor where white kitchen cabinets, a stunning waterfall island, and modern finishes create a clean, elevated look. Entertain effortlessly with 12-foot sliding glass doors that lead to a screened porch, blending indoor and outdoor living and offering the perfect place to unwind.
Time on Site
3 months ago
Property Type
Residential
Year Built
2025
Lot Size
6,969 SqFt
Price/Sq.Ft.
N/A
HOA Fees
Request Info from Buyer's AgentProperty Details
School Information
Additional Information
Region
Lot And Land
Agent Contacts
Room Dimensions
Property Details
Exterior Features
Interior Features
Systems & Utilities
Financial Information
Additional Information
- IDX
- -80.167526
- 32.761429
- Slab
