





1 Longtown Drive in Tanner Plantation, Hanahan, SC
1 Longtown Drive, Hanahan, SC 29410
$525,990
$525,990
Does this home feel like a match?
Let us know — it helps us curate better suggestions for you.
Property Highlights
Bedrooms
3
Bathrooms
2
Property Details
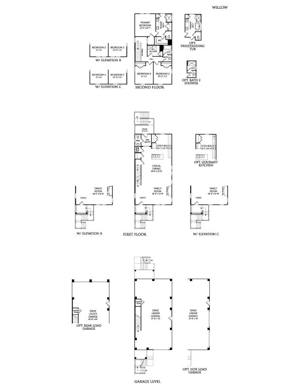
Welcome to Heron Preserve. A boutique community that will soon be filled with vibrant drive under homes with distinct architectural designs. Come visit the unmatched location right across from Bowens Corner Elementary School and the brand new Hawks Nest Park. This park features 6 tennis courts, a sand volleyball court, multipurpose field, artificial turf field, playground, fishing ponds, basketball court, two baseball/softball fields and pavilion. Dream Finders homes come with a plethora of design features to choose from. There is an extensive included features sheet in the photo section for you to view.Introducing the Willow floorplan. Upon entry you are greeted by a spacious foyer and Family room. This downstairs is a true open concept floorplan. The family room flows right into the dining and the dining into the kitchen. The kitchen is at the back of this home and includes plenty of cabinet space and a spacious 7' kitchen island that overlooks the dining and family room. At the rear is a Rear foyer where you can create a spacious drop zone/mud room area. There is both a coat closet downstairs along with an extra storage closet. Upstairs you will find 3 bedrooms including the Primary Bedroom. The Primary Bedroom includes a 5' Tiled Shower, large linen, Dual vanities and a sizeable walk in closet. The laundry room is a great size and includes a linen closet as well. This is a drive under home which includes a 2 car tandem garage and storage.
Time on Site
3 weeks ago
Property Type
Residential
Year Built
2025
Lot Size
2,613 SqFt
Price/Sq.Ft.
N/A
HOA Fees
Request Info from Buyer's AgentProperty Details
School Information
Additional Information
Region
Lot And Land
Agent Contacts
Green Features
Community & H O A
Room Dimensions
Property Details
Exterior Features
Interior Features
Systems & Utilities
Financial Information
Additional Information
- IDX
- -80.00564
- 32.944575
- Raised
