




Palmetto Crossing
1/11
$357k
Palmetto Crossing
$357k
Greenwood Townhome: Dream Lake Life, New Construction, Boat Slip
Palmetto Crossing
Lake LivingHigh EfficiencyBoat Slip Option
220 Lake Greenwood Boulevard, Greenwood, SC 29649
$356,636
$356,636
204 views
20 saves
Does this home feel like a match?
Let us know — it helps us curate better suggestions for you.
Property Highlights
Bedrooms
3
Bathrooms
2
Living Area
1,702 SqFt
Property Details
Lake LivingHigh EfficiencyBoat Slip Option
LOOKING FOR A NEW HOME FOR YOUR BOAT? THIS HOME INCLUDES THE OPPORTUNITY TO ADD A BOAT SLIP!!! Dreaming of the lake life??
Time on Site
6 months ago
Property Type
Residential
Year Built
2025
Lot Size
1,742 SqFt
Price/Sq.Ft.
$210
HOA Fees
Request Info from Buyer's AgentProperty Details
Bedrooms:
3
Bathrooms:
2
Living Area:
1,702 SqFt
Total Building Area:
1,702 SqFt
Property Sub-Type:
Townhouse
Stories:
2
School Information
Elementary:
Other
Middle:
Brewer Middle School
High:
Greenwood
School assignments may change. Contact the school district to confirm.
Loading map...
Additional Information
Agent Contacts
Request Showing
- Greenville: (864) 757-4000
- Simpsonville: (864) 881-2800
Listing Courtesy Of
Marie Zoltun of DFH Realty Georgia, LLC
Community & H O A
H O A
Y
Additional Fees
HOA Mgmt Transfer Fee
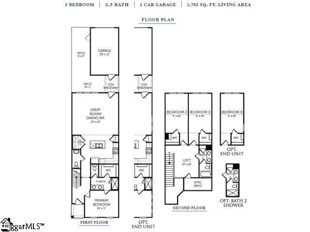
Room Dimensions
Kitchen Size
12x13
Bedroom #2 Size
16x10
Bedroom #3 Size
16x9
Living Room Size
20x17
Primary Bedroom Size
16x11
Property Details
County
Greenwood
Roof Type
Architectural
Foundation
Slab
Home Style
Craftsman
Tax I D Number
6879-944-079
Lot Description
- Lake
- Sidewalk
- Some Trees
- Underground Utilities
- Water Access
- Water View
- Wooded
Square Footage Range
1600-1799
Exterior Features
Driveway
Paved Asphalt
Exterior Finish
Concrete Plank
Exterior Features
- Patio
- Windows-Insulated
Interior Features
Laundry
- 1st Floor
- Closet Style
- Dryer – Electric Hookup
- Washer Connection
Flooring
- Carpet
- Ceramic Tile
- Laminate Flooring
Appliances
- Cook Top-Gas
- Dishwasher
- Disposal
- Oven-Convection
- Oven-Gas
- Microwave-Built In
Storage Space
Attic
Specialty Rooms
- Laundry
- Loft
- Attic
- Unfinished Space
Interior Features
- 2 Story Foyer
- Attic Stairs Disappearing
- Cable Available
- Ceiling 9ft+
- Ceiling Fan
- Ceiling Smooth
- Open Floor Plan
- Smoke Detector
- Walk In Closet
- Countertops – Quartz
- Pantry – Walk In
Number Of Fireplaces
0
Systems & Utilities
Sewer
Public
Water Heater
Tankless
Water Source
Public
Cooling System
Electric
Garbage Pickup
Private
Heating System
Natural Gas
Showing & Documentation
Documents On File
None
Showing Instructions
- List Agent Present
- No Appointment Required
- Call Listing Office/Agent
- Under Construction
Documents Required With Offer
- Copy Earnest Money Check
- Pre-approve/Proof of Fund
- Specified Sales Contract
Lead- Based Paint Disclosure Required
No
Residential Property Disclosure Required
No
The information is being provided by Greater Greenville MLS. Information deemed reliable but not guaranteed. Information is provided for consumers' personal, non-commercial use, and may not be used for any purpose other than the identification of potential properties for purchase. Copyright 2025 Greater Greenville MLS. All Rights Reserved.
