




Explore the Manning: 4 Bed, 2 Living Areas in Gilbert's Sease's Pond
138 Ruby Prince Road, Gilbert, SC 29054
$340,000
$340,000
Does this home feel like a match?
Let us know — it helps us curate better suggestions for you.
Property Highlights
Bedrooms
4
Bathrooms
3
Living Area
2,203 SqFt
Property Details
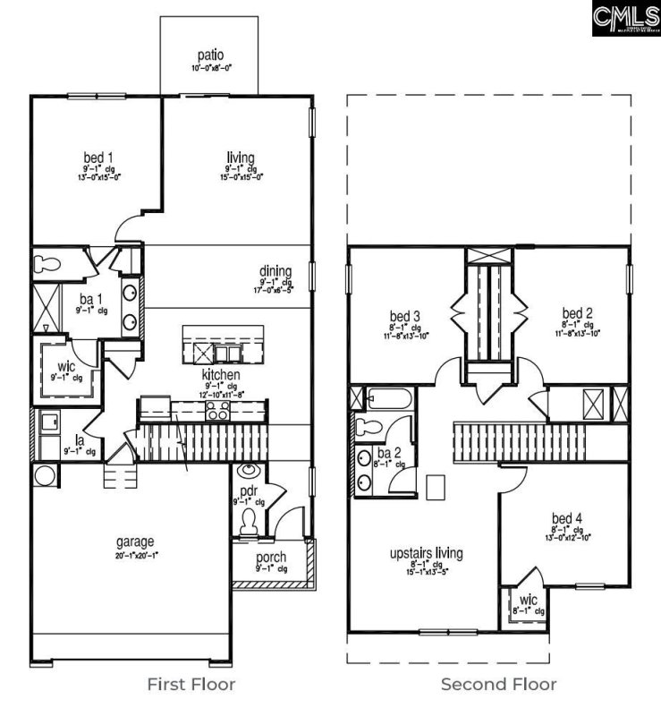
Welcome to the Manning at 138 Ruby Prince Road in Sease's Pond! This two-story home features the primary suite downstairs and 3 additional bedrooms upstairs. You can also find a secondary living room on the second level!
Time on Site
1 year ago
Property Type
Residential
Year Built
2025
Lot Size
7,840 SqFt
Price/Sq.Ft.
$154
HOA Fees
Request Info from Buyer's AgentListing Information
- LocationGilbert
- MLS #COL596183
- Last UpdatedDecember 15, 2025
Property Details
School Information
Loading map...
Additional Information
Property Details
- Dishwasher
- Microwave Above Stove
- Tankless H20
- Gas Water Heater
Exterior Features
- Brick- Partial- Abv Found
- Fiber Cement- Hardy Plank
Interior Features
- Free-Standing
- Gas
- Eat In
- Island
- Pantry
- Backsplash- Tiled
- Cabinets- Painted
- Counter Tops- Quartz
- Floors- Luxury Vinyl Plank
- French Doors
- Closet- Private
- Floors - Carpet
- Closet- Private
- Floors - Carpet
- French Doors
- Closet- Private
- Floors - Carpet
- Double Vanity
- Bath- Private
- Closet- Walk In
- Separate Water Closet
Contact Information
Systems & Utilities
- Gas 1St Lvl
- Gas 2Nd Lvl
Location Information
Financial Information
- Cash
- Conventional
- Rural Housing Eligible
- F H A
- V A
Details provided by Consolidated MLS and may not match the public record. Learn more. The information is being provided by Consolidated Multiple Listing Service, Inc. Information deemed reliable but not guaranteed. Information is provided for consumers' personal, non-commercial use, and may not be used for any purpose other than the identification of potential properties for purchase. © 2025 Consolidated Multiple Listing Service, Inc. All Rights Reserved.
Listing Information
- LocationGilbert
- MLS #COL596183
- Last UpdatedDecember 15, 2025
