




Fountain Inn Gem: Brand New 4 Bed, 2.5 Bath Home with Loft Space
217 Green Pasture Road, Fountain Inn, SC 29644
$293,990
$293,990
Does this home feel like a match?
Let us know — it helps us curate better suggestions for you.
Property Highlights
Bedrooms
4
Bathrooms
2
Living Area
1,919 SqFt
Property Details
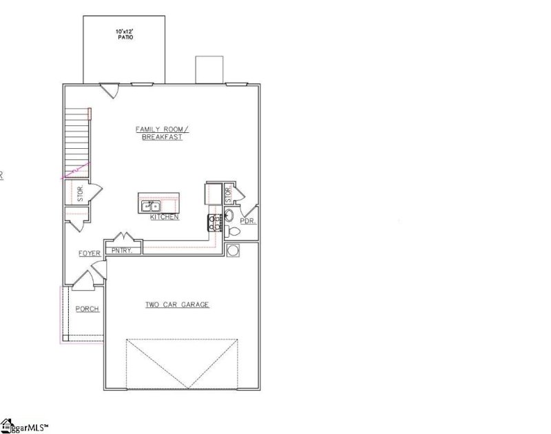
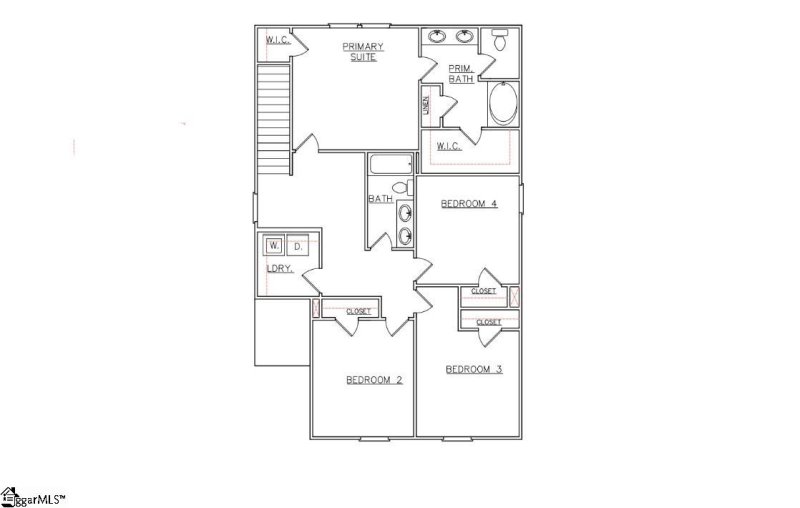
Step into the inviting Sierra floorplan, where comfort meets style in just over 1,900 square feet of beautifully designed living space. This home features four generous bedrooms, two full bathrooms, and a convenient half bath downstairs, perfect for guests. The heart of the home is the massive open-concept kitchen, seamlessly flowing into the dining and living areas, making it ideal for entertaining or family gatherings.
Time on Site
1 year ago
Property Type
Residential
Year Built
2025
Lot Size
6,098 SqFt
Price/Sq.Ft.
$153
HOA Fees
Request Info from Buyer's AgentListing Information
- LocationFountain Inn
- MLS #GVL1539493
- Stories2
- Last UpdatedNovember 18, 2025
Property Details
School Information
Loading map...
Additional Information
Agent Contacts
- Greenville: (864) 757-4000
- Simpsonville: (864) 881-2800
Community & H O A
Room Dimensions
Property Details
- Traditional
- Craftsman
Exterior Features
- Brick Veneer-Partial
- Vinyl Siding
- Patio
- Tilt Out Windows
- Windows-Insulated
Interior Features
- Closet Style
- Dryer – Electric Hookup
- Washer Connection
- Carpet
- Vinyl
- Dishwasher
- Oven-Electric
- Stand Alone Rng-Smooth Tp
- Microwave-Built In
- Attic Stairs Disappearing
- Cable Available
- Ceiling Fan
- Ceiling Smooth
- Countertops Granite
- Open Floor Plan
- Tub Garden
- Walk In Closet
- Pantry – Closet
- Smart Systems Pre-Wiring
- Window Trtments-AllRemain
- Other/See Remarks
Systems & Utilities
- Electric
- Heat Pump
Showing & Documentation
- Appointment/Call Center
- Call Listing Office/Agent
- Under Construction
- Copy Earnest Money Check
- Pre-approve/Proof of Fund
- Specified Sales Contract
The information is being provided by Greater Greenville MLS. Information deemed reliable but not guaranteed. Information is provided for consumers' personal, non-commercial use, and may not be used for any purpose other than the identification of potential properties for purchase. Copyright 2025 Greater Greenville MLS. All Rights Reserved.
Listing Information
- LocationFountain Inn
- MLS #GVL1539493
- Stories2
- Last UpdatedNovember 18, 2025
