




Built 2025: Spacious 4 Bed, 3 Bath, Guest Suite, Covered Patio
3001 Hallsdale Drive, Elgin, SC 29045
$340,000
$340,000
Does this home feel like a match?
Let us know — it helps us curate better suggestions for you.
Property Highlights
Bedrooms
4
Bathrooms
3
Living Area
2,557 SqFt
Property Details
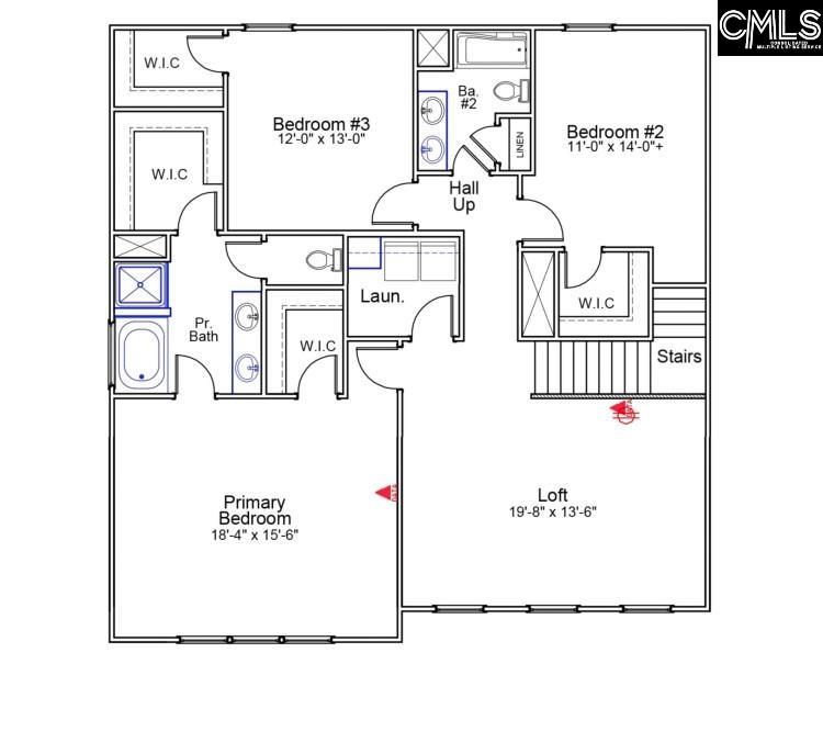
*This home qualifies for $10,000 in closing costs with our partner lender, Silverton Mortgage!* The Russell plan is a two-story home with a main floor guest suite, three full bathrooms, and four bedrooms. A spacious great room opens up to the eat-in kitchen area.
Time on Site
8 months ago
Property Type
Residential
Year Built
2025
Lot Size
7,840 SqFt
Price/Sq.Ft.
$133
HOA Fees
Request Info from Buyer's AgentListing Information
- LocationElgin
- MLS #COL606485
- Last UpdatedSeptember 8, 2025
Property Details
School Information
Loading map...
Additional Information
Property Details
- Dishwasher
- Disposal
- Microwave Above Stove
- Tankless H20
Exterior Features
- Sprinkler
- Gutters - Partial
- Front Porch - Covered
- Back Porch - Covered
Interior Features
- Gas
- Self Clean
- Eat In
- Island
- Recessed Lights
- Counter Tops- Quartz
- Floors- Luxury Vinyl Plank
- Smoke Detector
- Attic Pull- Down Access
- Bath- Shared
- Closet- Walk In
- Bath- Shared
- Closet- Private
- Bath- Shared
- Closet- Walk In
- Double Vanity
- Tub- Garden
- Separate Shower
- Closet- Walk In
- Separate Water Closet
Contact Information
Systems & Utilities
- Central
- Split System
- Zoned
- Gas 1St Lvl
- Gas 2Nd Lvl
- Split System
- Zoned
Location Information
Financial Information
- Common Area Maintenance
- Pool
- Sidewalk Maintenance
- Street Light Maintenance
- Cash
- Conventional
- F H A
- V A
Additional Information
- Cable T V Available
- Community Pool
- Warranty ( New Const) Bldr
- Sidewalk Community
Details provided by Consolidated MLS and may not match the public record. Learn more. The information is being provided by Consolidated Multiple Listing Service, Inc. Information deemed reliable but not guaranteed. Information is provided for consumers' personal, non-commercial use, and may not be used for any purpose other than the identification of potential properties for purchase. © 2025 Consolidated Multiple Listing Service, Inc. All Rights Reserved.
Listing Information
- LocationElgin
- MLS #COL606485
- Last UpdatedSeptember 8, 2025
