





432 Hardwick Drive in Haynes Park, Columbia, SC
432 Hardwick Drive, Columbia, SC 29223
$295,000
$295,000
Does this home feel like a match?
Let us know — it helps us curate better suggestions for you.
Property Highlights
Bedrooms
4
Bathrooms
3
Living Area
2,392 SqFt
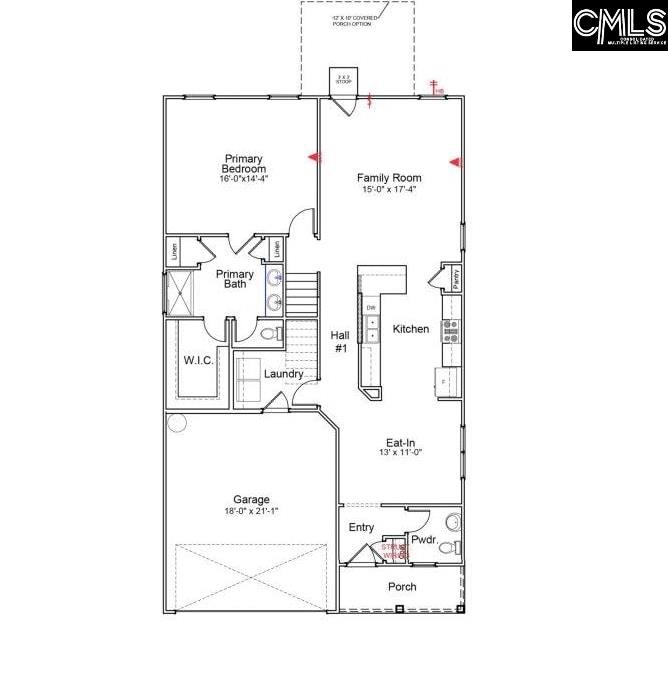
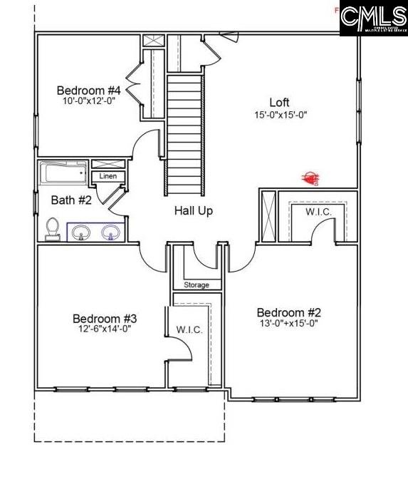
Property Details
The Monroe, a beautiful five bedroom, two and one half bathroom home with a main-floor primary suite. The spacious kitchen features stainless steel appliances, granite countertops, and a large island. The primary suite offers a walk-in closet and a luxurious ensuite with dual vanity and 5ft shower.
Time on Site
2 months ago
Property Type
Residential
Year Built
2024
Lot Size
4,791 SqFt
Price/Sq.Ft.
$123
HOA Fees
Request Info from Buyer's AgentProperty Details
School Information
Additional Information
Property Details
- Dishwasher
- Disposal
- Microwave Above Stove
- Tankless H20
Exterior Features
- Patio
- Front Porch - Covered
Interior Features
- Eat In
- Island
- Pantry
- Counter Tops- Granite
- Cabinets- Other
- Recessed Lights
- Floors- Luxury Vinyl Plank
- Smoke Detector
- Attic Pull- Down Access
- Ceiling Fan
- Floors- Luxury Vinyl Plank
- Closet- Walk In
- Floors - Carpet
- Closet- Walk In
- Floors - Carpet
- Double Vanity
- Separate Shower
- Ceiling Fan
- Separate Water Closet
- Floors - Carpet
Contact Information
Systems & Utilities
- Central
- Heat Pump 2Nd Lvl
- Attic Fan
- Thermopane
Location Information
Financial Information
- Common Area Maintenance
- Sidewalk Maintenance
- Street Light Maintenance
- Cash
- Conventional
- F H A
- V A
Additional Information
- Warranty ( New Const) Bldr
- Sidewalk Community
Details provided by Consolidated MLS and may not match the public record. Learn more. The information is being provided by Consolidated Multiple Listing Service, Inc. Information deemed reliable but not guaranteed. Information is provided for consumers' personal, non-commercial use, and may not be used for any purpose other than the identification of potential properties for purchase. © 2025 Consolidated Multiple Listing Service, Inc. All Rights Reserved.
