





387 Hardwick Drive in Haynes Park, Columbia, SC
387 Hardwick Drive, Columbia, SC 29223
$264,030
$264,030
Does this home feel like a match?
Let us know — it helps us curate better suggestions for you.
Property Highlights
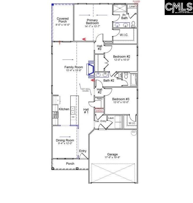
Bedrooms
3
Bathrooms
2
Living Area
1,548 SqFt
Property Details
The Brunswick, a single-story home that offers a perfect blend of comfort and elegance. Featuring three bedrooms and two bathrooms, it provides adequate space for families and guests. The formal dining room is ideal for hosting dinners, creating an inviting atmosphere for gatherings.
Time on Site
3 months ago
Property Type
Residential
Year Built
2024
Lot Size
4,791 SqFt
Price/Sq.Ft.
$171
HOA Fees
Request Info from Buyer's AgentListing Information
- LocationColumbia
- MLS #COL612981
- Last UpdatedJuly 25, 2025
Property Details
School Information
Additional Information
Property Details
- Dishwasher
- Disposal
- Microwave Above Stove
- Tankless H20
Exterior Features
- Stone
- Vinyl
- Front Porch - Covered
- Back Porch - Covered
Interior Features
- Eat In
- Island
- Pantry
- Counter Tops- Granite
- Cabinets- Other
- Recessed Lights
- Floors- Luxury Vinyl Plank
- Smoke Detector
- Attic Pull- Down Access
- Ceiling Fan
- Floors- Luxury Vinyl Plank
- Closet- Walk In
- Floors - Carpet
- Closet- Walk In
- Floors - Carpet
- Double Vanity
- Separate Shower
- Ceiling Fan
- Floors - Carpet
Contact Information
Systems & Utilities
- Central
- Heat Pump 2Nd Lvl
- Attic Fan
- Thermopane
Location Information
Financial Information
- Common Area Maintenance
- Sidewalk Maintenance
- Street Light Maintenance
- Cash
- Conventional
- F H A
- V A
Additional Information
- Warranty ( New Const) Bldr
- Sidewalk Community
Details provided by Consolidated MLS and may not match the public record. Learn more. The information is being provided by Consolidated Multiple Listing Service, Inc. Information deemed reliable but not guaranteed. Information is provided for consumers' personal, non-commercial use, and may not be used for any purpose other than the identification of potential properties for purchase. © 2025 Consolidated Multiple Listing Service, Inc. All Rights Reserved.
Listing Information
- LocationColumbia
- MLS #COL612981
- Last UpdatedJuly 25, 2025
