




275 Brando Way in Haynes Park, Columbia, SC
275 Brando Way, Columbia, SC 29223
$2,095
$2,095
Rental
Does this home feel like a match?
Let us know — it helps us curate better suggestions for you.
Property Highlights
Bedrooms
3
Bathrooms
3
Living Area
1,962 SqFt
Property Details
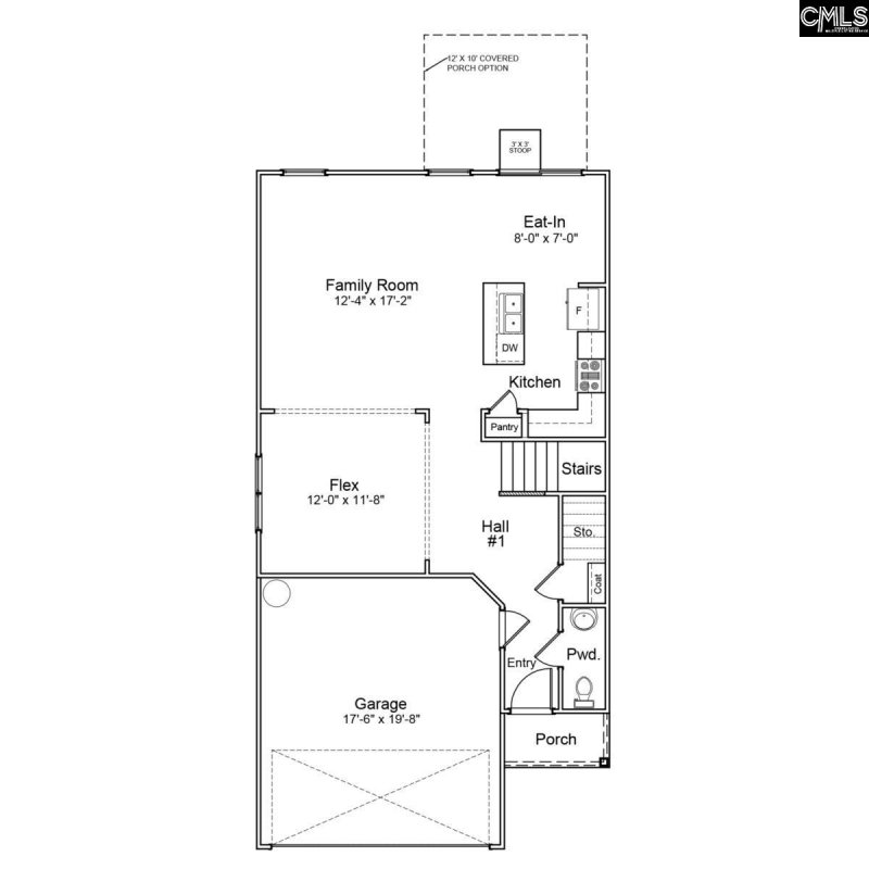
This new construction home is located in the Haynes Park subdivision (lot 115) and is available for rent! This two-story home includes 3 bedrooms and 2.5 bathrooms.
Time on Site
1 week ago
Property Type
Rental
Year Built
2025
Lot Size
4,791 SqFt
Price/Sq.Ft.
$1
HOA Fees
Request Info from Buyer's AgentProperty Details
School Information
Loading map...
Additional Information
Contact Information
Details provided by Consolidated MLS and may not match the public record. Learn more. The information is being provided by Consolidated Multiple Listing Service, Inc. Information deemed reliable but not guaranteed. Information is provided for consumers' personal, non-commercial use, and may not be used for any purpose other than the identification of potential properties for purchase. © 2025 Consolidated Multiple Listing Service, Inc. All Rights Reserved.
