



New Columbia Townhome: Incentives, Garage, and Large Great Room
118 Carr Lane, Columbia, SC 29223
$189,900
$189,900
Does this home feel like a match?
Let us know — it helps us curate better suggestions for you.
Property Highlights
Bedrooms
3
Bathrooms
3
Living Area
1,362 SqFt
Property Details
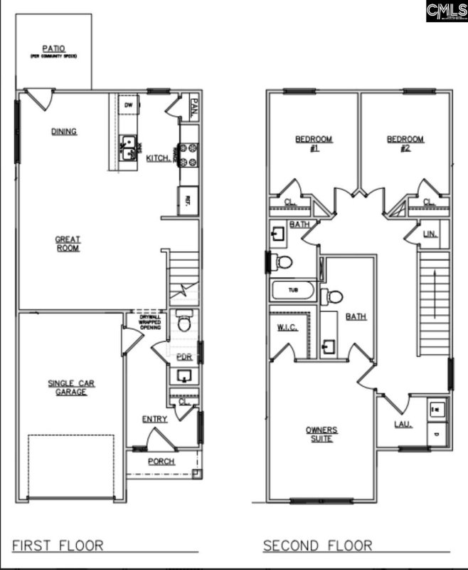
Receive up to $10,000 towards closing costs and/or options with our preferred lender! The Cypress C invites you into a spacious entryway that leads to a half bath and coat closet. Beyond that, the town home opens to a large great room that connects the kitchen and dining areas.
Time on Site
8 months ago
Property Type
Residential
Year Built
2025
Lot Size
4,356 SqFt
Price/Sq.Ft.
$139
HOA Fees
Request Info from Buyer's AgentListing Information
- LocationColumbia
- MLS #COL602988
- Last UpdatedSeptember 20, 2025
Property Details
School Information
Additional Information
Property Details
- Dishwasher
- Microwave Above Stove
Exterior Features
Interior Features
- Eat In
- Counter Tops- Granite
- Cabinets- Stained
- Recessed Lights
- Floors- Luxury Vinyl Plank
- Ceilings- High (Over 9 Ft)
- Floors- Luxury Vinyl Plank
- Ceilings- High (Over 9 Ft)
- Floors- Luxury Vinyl Plank
- Double Vanity
- Floors - Carpet
Contact Information
Systems & Utilities
Location Information
Financial Information
- Cash
- Conventional
- F H A
- V A
Details provided by Consolidated MLS and may not match the public record. Learn more. The information is being provided by Consolidated Multiple Listing Service, Inc. Information deemed reliable but not guaranteed. Information is provided for consumers' personal, non-commercial use, and may not be used for any purpose other than the identification of potential properties for purchase. © 2025 Consolidated Multiple Listing Service, Inc. All Rights Reserved.
Listing Information
- LocationColumbia
- MLS #COL602988
- Last UpdatedSeptember 20, 2025
