




Discover Your New Home: Spacious Backyard & Upgrades in Clinton
109 Highland Station Drive, Clinton, SC 29325
$238,900
$238,900
Does this home feel like a match?
Let us know — it helps us curate better suggestions for you.
Property Highlights
Bedrooms
3
Bathrooms
2
Living Area
1,424 SqFt
Property Details
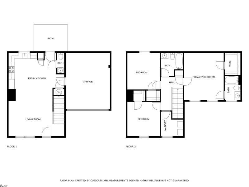
Welcome home to 109 Highland Station Drive! This thoughtfully designed two-story property features a spacious backyard, flexible living spaces, and is move-in ready. As you step inside, you will enter the bright and cheery foyer.
Time on Site
5 months ago
Property Type
Residential
Year Built
2023
Lot Size
13,068 SqFt
Price/Sq.Ft.
$168
HOA Fees
Request Info from Buyer's AgentProperty Details
School Information
Loading map...
Additional Information
Agent Contacts
- Greenville: (864) 757-4000
- Simpsonville: (864) 881-2800
Community & H O A
Room Dimensions
Property Details
- Traditional
- Craftsman
- Level
- Wooded
Exterior Features
- Paved
- Paved Concrete
- Patio
- Porch-Front
- Tilt Out Windows
- Vinyl/Aluminum Trim
- Windows-Insulated
Interior Features
- 2nd Floor
- Walk-in
- Carpet
- Vinyl
- Dishwasher
- Disposal
- Dryer
- Refrigerator
- Washer
- Stand Alone Rng-Smooth Tp
- Microwave-Built In
- Attic
- Garage
- Attic Stairs Disappearing
- Cable Available
- Ceiling 9ft+
- Ceiling Fan
- Ceiling Smooth
- Countertops Granite
- Open Floor Plan
Systems & Utilities
- Central Forced
- Electric
- Electric
- Forced Air
- Damper Controlled
Showing & Documentation
- Advance Notice Required
- Appointment/Call Center
- Occupied
- Lockbox-Electronic
- Copy Earnest Money Check
- Pre-approve/Proof of Fund
- Signed SDS
- Specified Sales Contract
The information is being provided by Greater Greenville MLS. Information deemed reliable but not guaranteed. Information is provided for consumers' personal, non-commercial use, and may not be used for any purpose other than the identification of potential properties for purchase. Copyright 2025 Greater Greenville MLS. All Rights Reserved.
