




200 Boysenberry Drive in Millers Grove, China Grove, NC
200 Boysenberry Drive, China Grove, NC 28023
$399,000
$399,000
Does this home feel like a match?
Let us know — it helps us curate better suggestions for you.
Property Highlights
Bedrooms
3
Bathrooms
2
Living Area
3,240 SqFt
Property Details
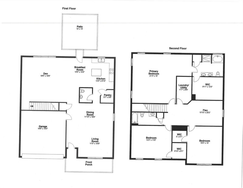
3 bedroom 2 and a half bath with 3240 total square feet with 1890 sq ft on the second floor. Primary bedroom suite is 21x19 with large Closet. Laundry room has plenty of room to store and folding area. all bedrooms are larger than most 3/2 homes. Flex room could convert into a 4th bedroom easily. Measurements and floor plan are attached in photos.
Time on Site
8 months ago
Property Type
Residential
Year Built
2017
Lot Size
N/A
Price/Sq.Ft.
$123
HOA Fees
Request Info from Buyer's AgentListing Information
- LocationChina Grove
- MLS #CAR273761808
- Last UpdatedNovember 5, 2025
Property Details
School Information
Loading map...
Additional Information
Utilities
- Public Sewer
- City
Lot And Land
- Fenced
Agent Contacts
- Palmetto Park Realty Team Fort Mill: 803.548.6123
Interior Details
- Electric
- Heat Pump
- Electric Dryer Hookup
- Laundry Room
- Upper Level
- Washer Hookup
- Attic Stairs Pulldown
Exterior Features
- Vinyl
Parking And Garage
- Attached Garage
Financial Information
Basement And Foundation
- Slab
Zoning And Restrictions
Square Footage And Levels
- Two
Additional C A R Information
IDX information is provided exclusively for consumers' personal, non-commercial use only; it may not be used for any purpose other than to identify prospective properties consumers may be interested in purchasing. Data is deemed reliable but is not guaranteed accurate by the MLS GRID. Use of this site may be subject to an end user license agreement. Based on information submitted to the MLS GRID as of Wed, Nov 5, 2025. All data is obtained from various sources and may not have been verified by broker or MLS GRID. Supplied Open House Information is subject to change without notice. All information should be independently reviewed and verified for accuracy. Properties may or may not be listed by the office/agent presenting the information. Some IDX listings have been excluded from this website. Any use by you of search facilities of data on the site, other than by a consumer looking to purchase real estate, is prohibited. DMCA Notice: Palmetto Park Realty respects the intellectual property rights of others. If you believe that your work has been copied in a way that constitutes copyright infringement, please provide our designated agent with written notice containing the following information: (1) identification of the copyrighted work claimed to have been infringed; (2) identification of the material that is claimed to be infringing; (3) your contact information; (4) a statement that you have a good faith belief that use of the material is not authorized; and (5) a statement that the information in the notification is accurate and you are authorized to act on behalf of the copyright owner. Please send DMCA notices to: [email protected]
Listing Information
- LocationChina Grove
- MLS #CAR273761808
- Last UpdatedNovember 5, 2025