


Spacious New Chesnee Home on Generous Half-Acre - Est. July 2025 Completion
SOLD5022 Burke Meadows Run, Chesnee, SC 29323
$329,000
$329,000
Sale Summary
Sold below asking price • Extended time on market
Does this home feel like a match?
Let us know — it helps us curate better suggestions for you.
Property Highlights
Bedrooms
3
Bathrooms
2
Living Area
1,895 SqFt
Property Details
This Property Has Been Sold
This property sold 1 month ago and is no longer available for purchase.
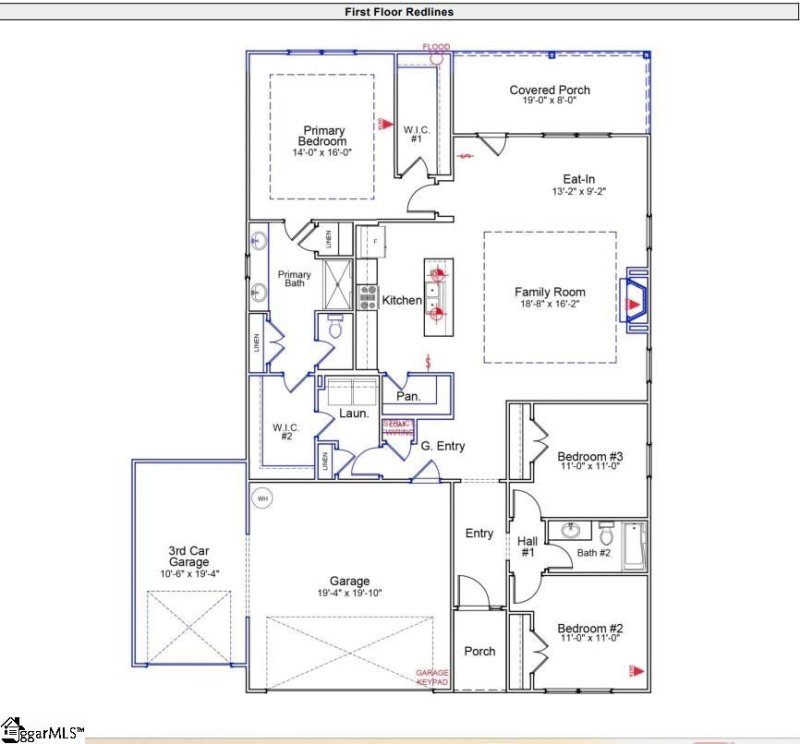
View active listings in Burke Estates →**ESTIMATED COMPLETION JULY 2025** Sitting on just over a half-acre, this Gwinnett floor is a three-bedroom, two-bathroom single-story open plan. The kitchen features a large island and pantry and is open to the family room with a fireplace and eat-in area. The primary bedroom is split from the secondary bedrooms and features two walk-in closets, dual linen closets and a water closet.
Time on Site
6 months ago
Property Type
Residential
Year Built
2025
Lot Size
36,590 SqFt
Price/Sq.Ft.
$174
HOA Fees
Request Info from Buyer's AgentProperty Details
School Information
Loading map...
Additional Information
Agent Contacts
- Greenville: (864) 757-4000
- Simpsonville: (864) 881-2800
Community & H O A
- HOA Mgmt Transfer Fee
- Cap Contr./Perpetual Fee
Room Dimensions
Property Details
- Level
- Some Trees
Exterior Features
- Porch-Front
- Porch-Screened
- Tilt Out Windows
- Porch-Covered Back
Interior Features
- 1st Floor
- Walk-in
- Dryer – Electric Hookup
- Carpet
- Luxury Vinyl Tile/Plank
- Cook Top-Smooth
- Dishwasher
- Disposal
- Cook Top-Electric
- Oven-Electric
- Microwave-Built In
- Attic
- Garage
- Laundry
- Attic
- Attic Stairs Disappearing
- Cable Available
- Ceiling 9ft+
- Ceiling Trey
- Open Floor Plan
- Smoke Detector
- Walk In Closet
- Split Floor Plan
- Countertops – Quartz
- Pantry – Walk In
Systems & Utilities
- Central Forced
- Electric
- Electric
- Forced Air
Showing & Documentation
- Warranty Furnished
- Restric.Cov/By-Laws
- SQFT Sketch
- Advance Notice Required
- Appointment/Call Center
- Call Listing Office/Agent
- Copy Earnest Money Check
- Pre-approve/Proof of Fund
- Specified Sales Contract
The information is being provided by Greater Greenville MLS. Information deemed reliable but not guaranteed. Information is provided for consumers' personal, non-commercial use, and may not be used for any purpose other than the identification of potential properties for purchase. Copyright 2025 Greater Greenville MLS. All Rights Reserved.
