




6104 Westheart Way in River District, Charlotte, NC
6104 Westheart Way, Charlotte, NC 28278
$908,655
$908,655
Does this home feel like a match?
Let us know — it helps us curate better suggestions for you.
Property Highlights
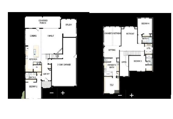
Bedrooms
4
Bathrooms
4
Living Area
3,166 SqFt
Property Details
Make your new home dreams a reality with The McCroy, our gorgeous home plan in Basswood, the newest phase of The River District. Part of the Excursion Collection, this home sits on a desirable corner homesite and combines thoughtful design with lifestyle-driven spaces. Step inside to the welcoming open-concept family and dining area, perfectly designed for hosting celebrations or enjoying quiet evenings.
Time on Site
1 week ago
Property Type
Residential
Year Built
2025
Lot Size
N/A
Price/Sq.Ft.
$287
HOA Fees
Request Info from Buyer's AgentProperty Details
School Information
Loading map...
Additional Information
Utilities
- Public Sewer
- Cable Connected
- City
Lot And Land
- Corner Lot
Agent Contacts
- Palmetto Park Realty Team Fort Mill: 803.548.6123
Interior Details
- Electric
- Sliding Doors
- Insulated Window(s)
- Laundry Room
- Upper Level
- Garden Tub
- Kitchen Island
- Open Floorplan
- Pantry
- Walk-In Closet(s)
- Walk-In Pantry
Exterior Features
- Architectural Shingle
- Fiber Cement
- Covered
- Rear Porch
Parking And Garage
- Driveway
- Attached Garage
- Garage Door Opener
- Garage Faces Rear
Financial Information
Dwelling And Structure
- Advanced Framing
Basement And Foundation
- Slab
Zoning And Restrictions
Square Footage And Levels
- Two
Additional C A R Information
IDX information is provided exclusively for consumers' personal, non-commercial use only; it may not be used for any purpose other than to identify prospective properties consumers may be interested in purchasing. Data is deemed reliable but is not guaranteed accurate by the MLS GRID. Use of this site may be subject to an end user license agreement. Based on information submitted to the MLS GRID as of Sat, Dec 6, 2025. All data is obtained from various sources and may not have been verified by broker or MLS GRID. Supplied Open House Information is subject to change without notice. All information should be independently reviewed and verified for accuracy. Properties may or may not be listed by the office/agent presenting the information. Some IDX listings have been excluded from this website. Any use by you of search facilities of data on the site, other than by a consumer looking to purchase real estate, is prohibited. DMCA Notice: Palmetto Park Realty respects the intellectual property rights of others. If you believe that your work has been copied in a way that constitutes copyright infringement, please provide our designated agent with written notice containing the following information: (1) identification of the copyrighted work claimed to have been infringed; (2) identification of the material that is claimed to be infringing; (3) your contact information; (4) a statement that you have a good faith belief that use of the material is not authorized; and (5) a statement that the information in the notification is accurate and you are authorized to act on behalf of the copyright owner. Please send DMCA notices to: [email protected]