





5527 Cheerful Lane in Cresswind, Charlotte, NC
5527 Cheerful Lane, Charlotte, NC 28215
$530,000
$530,000
Does this home feel like a match?
Let us know — it helps us curate better suggestions for you.
Property Highlights
Bedrooms
2
Bathrooms
2
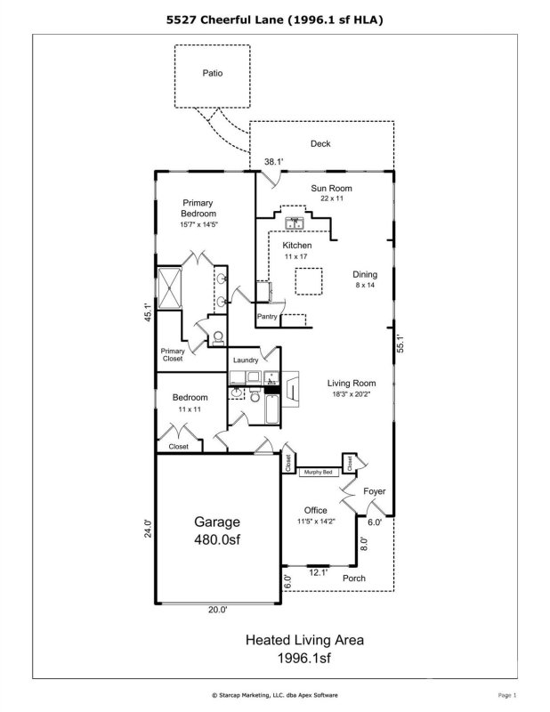
Living Area
1,996 SqFt
Property Details
Beautifully maintained Ranch style home in a resort-style 55+ community—lawn maintenance included! . Luxury vinyl plank flooring extends across the entire home-no carpet.
Time on Site
3 months ago
Property Type
Residential
Year Built
2019
Lot Size
N/A
Price/Sq.Ft.
$266
HOA Fees
Request Info from Buyer's AgentProperty Details
School Information
Additional Information
Utilities
- Public Sewer
- Natural Gas
- Wired Internet Available
- City
Lot And Land
- Back Yard
- Fenced
- Level
Agent Contacts
- Palmetto Park Realty Team Fort Mill: 803.548.6123
Interior Details
- Forced Air
- Heat Pump
- Tile
- Vinyl
- French Doors
- Insulated Window(s)
- Electric Dryer Hookup
- Laundry Room
- Main Level
- Sink
- Attic Stairs Pulldown
- Breakfast Bar
- Cable Prewire
- Entrance Foyer
- Kitchen Island
- Open Floorplan
- Split Bedroom
- Walk-In Closet(s)
- Walk-In Pantry
- Carbon Monoxide Detector(s)
- Security System
- Smoke Detector(s)
- Gas Vented
- Great Room
Exterior Features
- Architectural Shingle
- In-Ground Irrigation
- Lawn Maintenance
- Fiber Cement
- Covered
- Front Porch
- Rear Porch
Parking And Garage
- Attached Garage
- Garage Faces Front
Financial Information
Dwelling And Structure
- Arts and Crafts
- Roll-In Shower
Basement And Foundation
- Slab
Zoning And Restrictions
Square Footage And Levels
- One
Additional C A R Information
IDX information is provided exclusively for consumers' personal, non-commercial use only; it may not be used for any purpose other than to identify prospective properties consumers may be interested in purchasing. Data is deemed reliable but is not guaranteed accurate by the MLS GRID. Use of this site may be subject to an end user license agreement. Based on information submitted to the MLS GRID as of Tue, Oct 28, 2025. All data is obtained from various sources and may not have been verified by broker or MLS GRID. Supplied Open House Information is subject to change without notice. All information should be independently reviewed and verified for accuracy. Properties may or may not be listed by the office/agent presenting the information. Some IDX listings have been excluded from this website. Any use by you of search facilities of data on the site, other than by a consumer looking to purchase real estate, is prohibited. DMCA Notice: Palmetto Park Realty respects the intellectual property rights of others. If you believe that your work has been copied in a way that constitutes copyright infringement, please provide our designated agent with written notice containing the following information: (1) identification of the copyrighted work claimed to have been infringed; (2) identification of the material that is claimed to be infringing; (3) your contact information; (4) a statement that you have a good faith belief that use of the material is not authorized; and (5) a statement that the information in the notification is accurate and you are authorized to act on behalf of the copyright owner. Please send DMCA notices to: [email protected]