




Central Park
1/28
$930k
Central Park
$930k
Experience Luxury: Proposed James Island Drive Under Home with Suite
Central Park
Thoughtful CraftsmanshipSophisticated FinishesTurn Key Property
722 Minton Road, Charleston, SC 29412
$930,459
$930,459
206 views
21 saves
Does this home feel like a match?
Let us know — it helps us curate better suggestions for you.
Property Highlights
Bedrooms
3
Bathrooms
2
Property Details
Thoughtful CraftsmanshipSophisticated FinishesTurn Key Property
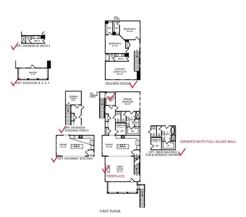
PROPOSED CONSTRUCTION; LOT 20The Monroe floorplan: Nestled in the heart of James Island and situated in a pocket style community, this beautifully crafted Drive under home is designed with thoughtful craftsmanship and sophisticated finishes throughout. It will not only boast a primary bedroom on the 1st floor but also a Guest Suite on the 2nd floor will have its own ensuite. A Gourmet kitchen and fireplace in the great room are perfect for entertaining.
Time on Site
8 months ago
Property Type
Residential
Year Built
2025
Lot Size
3,049 SqFt
Price/Sq.Ft.
N/A
HOA Fees
Request Info from Buyer's AgentProperty Details
Bedrooms:
3
Bathrooms:
2
Total Building Area:
2,356 SqFt
Property Sub-Type:
SingleFamilyResidence
Garage:
Yes
Stories:
2
School Information
Elementary:
Harbor View
Middle:
Camp Road
High:
James Island Charter
School assignments may change. Contact the school district to confirm.
Loading map...
Additional Information
Lot And Land
Lot Features
0 - .5 Acre
Lot Size Area
0.07
Lot Size Acres
0.07
Lot Size Units
Acres
Agent Contacts
List Agent Mls Id
36827
List Office Name
DFH Realty Georgia, LLC
List Office Mls Id
10811
List Agent Full Name
Maressa Williams
Green Features
Green Building Verification Type
HERS Index Score
Community & H O A
Community Features
Walk/Jog Trails
Room Dimensions
Bathrooms Half
1
Room Master Bedroom Level
Lower
Property Details
Directions
From James Island Connector: Turn Right Onto Folly Road, And Left Onto Central Park, Community Will Be On The Right From Johns Island: Over Stono Bridge, Right Onto Riverland Drive, Left Onto Central Park, Community Will On The Left. Model Address 518 Highcroft Ave, Charleston Sc 29412
M L S Area Major
21 - James Island
Tax Map Number
3400300112
County Or Parish
Charleston
Property Sub Type
Single Family Detached
Architectural Style
Charleston Single
Construction Materials
Cement Siding
Exterior Features
Roof
Metal
Other Structures
No
Parking Features
2 Car Garage, Attached, Garage Door Opener
Exterior Features
Balcony, Rain Gutters
Patio And Porch Features
Covered, Front Porch, Porch - Full Front, Screened
Interior Features
Cooling
Central Air
Heating
Electric
Flooring
Ceramic Tile, Wood
Room Type
Eat-In-Kitchen, Great, Laundry, Loft, Pantry
Window Features
Window Treatments
Laundry Features
Electric Dryer Hookup, Washer Hookup, Laundry Room
Interior Features
High Ceilings, Kitchen Island, Walk-In Closet(s), Ceiling Fan(s), Eat-in Kitchen, Great, Loft, Pantry
Systems & Utilities
Sewer
Public Sewer
Utilities
Charleston Water Service, Dominion Energy
Water Source
Public
Financial Information
Listing Terms
Cash, Conventional, VA Loan
Additional Information
Stories
2
Garage Y N
true
Carport Y N
false
Cooling Y N
true
Feed Types
- IDX
Heating Y N
true
Listing Id
25007665
Mls Status
Active
Listing Key
b57e7869590e15913beddf4d1ab73ab6
Coordinates
- -79.977428
- 32.750082
Fireplace Y N
true
Parking Total
2
Carport Spaces
0
Covered Spaces
2
Co List Agent Key
94d54d9881597c27886a32e605856f84
Home Warranty Y N
true
Standard Status
Active
Co List Office Key
d284fb31b3be08e6a792c4abca1a6722
Fireplaces Total
1
Source System Key
20250321231732599050000000
Attached Garage Y N
true
Co List Agent Mls Id
20107
Co List Office Name
DFH Realty Georgia, LLC
Building Area Units
Square Feet
Co List Office Mls Id
10811
Foundation Details
- Raised
- Slab
New Construction Y N
true
Property Attached Y N
false
Co List Agent Full Name
Julie Gustavson
Originating System Name
CHS Regional MLS
Special Listing Conditions
10 Yr Warranty
Co List Agent Preferred Phone
843-938-1163
Showing & Documentation
Internet Address Display Y N
true
Internet Consumer Comment Y N
true
Internet Automated Valuation Display Y N
true
