
Eastside
$3.3M




View All85 Photos

Eastside
85
$3.3M
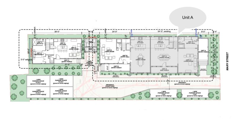
Three Units2020 ConstructionNear Union Pier
Own a Prime 2020 Charleston 3-Unit Income Property Near Union Pier
Eastside
Three Units2020 ConstructionNear Union Pier
22 1 2 Mary Street C, Charleston, SC 29403
$3,250,000
$3,250,000
207 views
21 saves
Does this home feel like a match?
Let us know — it helps us curate better suggestions for you.
Property Highlights
Bedrooms
3
Bathrooms
3
Property Details
Three Units2020 ConstructionNear Union Pier
Directly behind Wraggborough's Aiken-Rhett house museum, in the shadow of Charleston's future Union Pier waterfront development, this property was designed for high-efficiency, low maintenance and was completed in 2020. Three units with a combined 11 bedrooms/ 11 bath/half-baths rent un-furnished, long-term, for $17,200/mo starting in August through July, 2026. 2024 expenses were $39,222.
Time on Site
9 months ago
Property Type
Residential
Year Built
2020
Lot Size
8,276 SqFt
Price/Sq.Ft.
N/A
HOA Fees
Request Info from Buyer's AgentProperty Details
Bedrooms:
3
Bathrooms:
3
Total Building Area:
6,807 SqFt
Property Sub-Type:
SingleFamilyResidence
School Information
Elementary:
Memminger
Middle:
Courtenay
High:
Burke
School assignments may change. Contact the school district to confirm.
Additional Information
Region
0
C
1
H
2
S
Lot And Land
Lot Features
Interior Lot, Level
Lot Size Area
0.19
Lot Size Acres
0.19
Lot Size Units
Acres
Agent Contacts
List Agent Mls Id
10789
List Office Name
Charleston Property Brokers
List Office Mls Id
9472
List Agent Full Name
Marion Jackson
Community & H O A
Community Features
Trash
Room Dimensions
Bathrooms Half
1
Room Master Bedroom Level
Lower,Upper
Property Details
Directions
From Calhoun North On Meeting St. Right On Mary St. Property Is On The Left
M L S Area Major
51 - Peninsula Charleston Inside of Crosstown
Tax Map Number
4590903091
County Or Parish
Charleston
Property Sub Type
Single Family Detached
Architectural Style
Carriage/Kitchen House, Contemporary, Traditional
Construction Materials
Cement Siding
Exterior Features
Roof
Asphalt
Fencing
Partial
Other Structures
Yes, Other
Parking Features
Off Street
Exterior Features
Balcony
Patio And Porch Features
Porch - Full Front
Interior Features
Cooling
Central Air
Heating
Central
Flooring
Ceramic Tile, Wood
Interior Features
Walk-In Closet(s)
Systems & Utilities
Sewer
Public Sewer
Utilities
Charleston Water Service, Dominion Energy
Water Source
Public
Financial Information
Listing Terms
Any, Cash, Conventional
Additional Information
Stories
3
Garage Y N
false
Carport Y N
false
Cooling Y N
true
Feed Types
- IDX
Heating Y N
true
Listing Id
25003512
Mls Status
Active
Listing Key
b9ab15f6af8b367079f9dc4f9860f6ce
Unit Number
A, B, C
Coordinates
- -79.935073
- 32.79243
Fireplace Y N
false
Carport Spaces
0
Covered Spaces
0
Standard Status
Active
Source System Key
20250206205152508970000000
Building Area Units
Square Feet
Foundation Details
- Crawl Space
New Construction Y N
false
Property Attached Y N
false
Showing & Documentation
Internet Address Display Y N
true
Internet Consumer Comment Y N
true
Internet Automated Valuation Display Y N
true
