





314 Rising Stream Way in Pebble Branch, Chapin, SC
314 Rising Stream Way, Chapin, SC 29036
$423,702
$423,702
Does this home feel like a match?
Let us know — it helps us curate better suggestions for you.
Property Highlights
Bedrooms
4
Bathrooms
3
Living Area
2,718 SqFt
Property Details
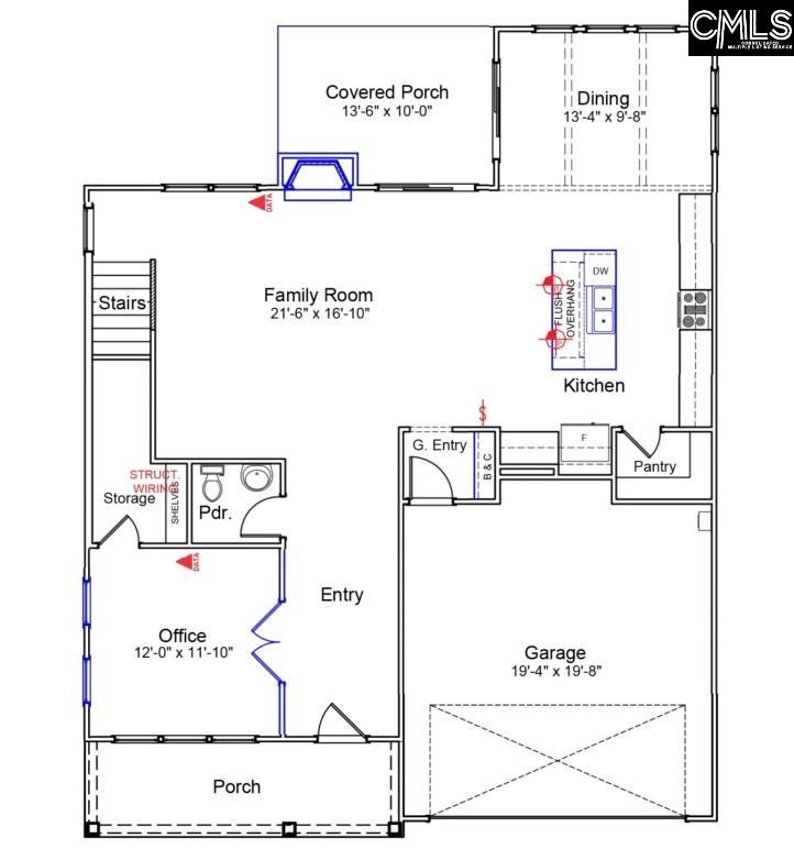
The Roanoke, this home features four bedrooms, and two-and-one half baths. Upon entry you will find an office space with French doors. The entry way leads you into your large great room with a gas fireplace.
Time on Site
6 days ago
Property Type
Residential
Year Built
2025
Lot Size
7,840 SqFt
Price/Sq.Ft.
$156
HOA Fees
Request Info from Buyer's AgentProperty Details
School Information
Additional Information
Property Details
- Dishwasher
- Disposal
- Tankless H20
Exterior Features
- Fiber Cement- Hardy Plank
- Stone
- Sprinkler
- Gutters - Full
- Front Porch - Covered
- Back Porch - Covered
Interior Features
- Fireplace
- Molding
- Floors- Luxury Vinyl Plank
- Island
- Pantry
- Cabinets- Painted
- Recessed Lights
- Counter Tops- Quartz
- Floors- Luxury Vinyl Plank
- Garage Opener
- Attic Pull- Down Access
- Molding
- Floors- Luxury Vinyl Plank
- Ceilings – Coffered
- Bath- Private
- Ceilings- Box
- Floors - Carpet
Contact Information
Systems & Utilities
- Central
- Heat Pump 2Nd Lvl
- Gas 1St Lvl
- Heat Pump 2Nd Lvl
Location Information
Financial Information
- Common Area Maintenance
- Pool
- Street Light Maintenance
- Cash
- Conventional
- F H A
- V A
Additional Information
- Community Pool
- Warranty ( New Const) Bldr
Details provided by Consolidated MLS and may not match the public record. Learn more. The information is being provided by Consolidated Multiple Listing Service, Inc. Information deemed reliable but not guaranteed. Information is provided for consumers' personal, non-commercial use, and may not be used for any purpose other than the identification of potential properties for purchase. © 2025 Consolidated Multiple Listing Service, Inc. All Rights Reserved.
