

7019 New Horizons Lane in Landmark Commons, Boiling Springs, SC
7019 New Horizons Lane, Boiling Springs, SC 29316
$299,000
$299,000
Does this home feel like a match?
Let us know — it helps us curate better suggestions for you.
Property Highlights
Bedrooms
3
Bathrooms
2
Living Area
1,500 SqFt
Property Details
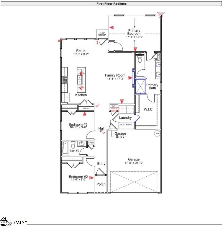
Welcome to the Lawrence — a thoughtfully designed ranch-style home offering the ease of single-level living with modern comfort and timeless curb appeal. This well-appointed plan features three bedrooms and two full bathrooms, including a spacious and private primary suite tucked at the rear of the home. The primary suite offers a generous walk-in closet and a beautifully designed bathroom, creating a relaxing retreat.
Time on Site
3 weeks ago
Property Type
Residential
Year Built
2026
Lot Size
9,147 SqFt
Price/Sq.Ft.
$199
HOA Fees
Request Info from Buyer's AgentProperty Details
School Information
Loading map...
Additional Information
Agent Contacts
- Greenville: (864) 757-4000
- Simpsonville: (864) 881-2800
Community & H O A
Room Dimensions
Property Details
Exterior Features
Interior Features
- Carpet
- Luxury Vinyl Tile/Plank
- Dishwasher
- Disposal
- Oven-Gas
- Microwave-Built In
- Attic Stairs Disappearing
- Ceiling 9ft+
- Countertops-Solid Surface
- Walk In Closet
- Pantry – Closet
Systems & Utilities
- Gas
- Tankless
- Central Forced
- Electric
Showing & Documentation
- Copy Earnest Money Check
- Pre-approve/Proof of Fund
The information is being provided by Greater Greenville MLS. Information deemed reliable but not guaranteed. Information is provided for consumers' personal, non-commercial use, and may not be used for any purpose other than the identification of potential properties for purchase. Copyright 2025 Greater Greenville MLS. All Rights Reserved.
