





263 Sunny Hill Drive in The Falls, Blythewood, SC
263 Sunny Hill Drive, Blythewood, SC 29016-0000
$264,900
$264,900
Property Highlights
Bedrooms
4
Bathrooms
4
Living Area
1,892 SqFt
Property Details
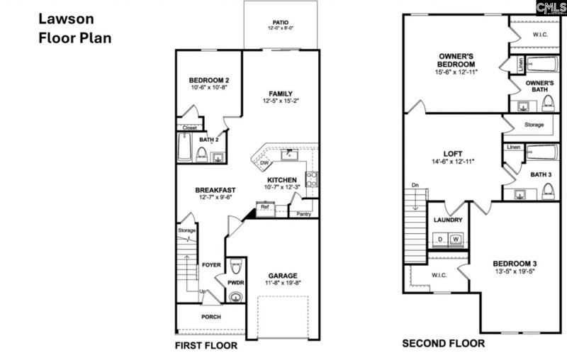
New Townhomes - Enjoy a spare bedroom on main level with ensuite private full bathroom. Master bedroom & guest bedrooms on second floor just off loft area. Tiled laundry room on 2nd floor next to master bedroom.
Time on Site
1 month ago
Property Type
Residential
Year Built
2025
Lot Size
4,791 SqFt
Price/Sq.Ft.
$140
HOA Fees
Request Info from Buyer's AgentListing Information
- LocationBlythewood
- MLS #COL615178
- Last UpdatedAugust 16, 2025
Property Details
School Information
Additional Information
Property Details
- Dishwasher
- Disposal
- Refrigerator
- Microwave Above Stove
- Tankless H20
Exterior Features
Interior Features
- Floors- Laminate
- Ceiling Fan
- Free-Standing
- Gas
- Galley
- Island
- Pantry
- Floors- Laminate
- Backsplash- Tiled
- Recessed Lights
- Counter Tops- Quartz
- Ceiling Fan
- Garage Opener
- Smoke Detector
- Bath- Private
- Separate Shower
- Closet- Walk In
- Ceilings- Box
Contact Information
Systems & Utilities
- Heat Pump 1St Lvl
- Heat Pump 2Nd Lvl
- Gas 1St Lvl
- Gas 2Nd Lvl
Location Information
Additional Information
Details provided by Consolidated MLS and may not match the public record. Learn more. The information is being provided by Consolidated Multiple Listing Service, Inc. Information deemed reliable but not guaranteed. Information is provided for consumers' personal, non-commercial use, and may not be used for any purpose other than the identification of potential properties for purchase. © 2025 Consolidated Multiple Listing Service, Inc. All Rights Reserved.
Listing Information
- LocationBlythewood
- MLS #COL615178
- Last UpdatedAugust 16, 2025