



3124 Midway Road in Ridgecrest at Midway, Anderson, SC
3124 Midway Road, Anderson, SC 29621
$516,000
$516,000
Does this home feel like a match?
Let us know — it helps us curate better suggestions for you.
Property Highlights
Bedrooms
4
Bathrooms
3
Property Details
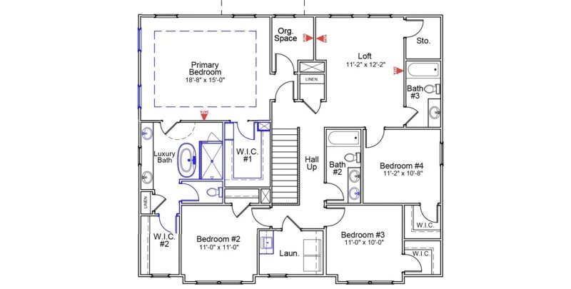
The Roland II is a two-story home with four bedrooms and three-and-one-half baths. Upon entering, you are greeted by an office space and formal dining room just beyond that on the elongated hallway. The office space contains double glass doors for privacy & class, and the dining room has two openings to the hallway & great room for extra convenience. The great room is open to the eat-in and kitchen. Off the back of the home, there is a sunroom for leisure activity and a covered porch that overlook a beautiful private wooded homesite. The kitchen contains upgraded solid surface countertops, a farmhouse sink, and stainless steel appliances. The upstairs primary bedroom includes a boxed ceiling, dual closets, and an organization space! The primary bathroom contains a luxury shower, free-standing soaker tub, and double vanities! Three secondary bedrooms are also located upstairs along with two secondary bathrooms, a spacious loft, and an enlarged laundry room with countertops and a sink.
Time on Site
2 weeks ago
Property Type
Residential
Year Built
2025
Lot Size
N/A
Price/Sq.Ft.
N/A
HOA Fees
Request Info from Buyer's AgentProperty Details
School Information
Loading map...
Additional Information
Utilities
Lot And Land
- Not In Subdivision
- Outside City Limits
Agent Contacts
- Anderson: (864) 202-6000
- Greenville: (864) 757-4000
- Lake Keowee: (864) 886-2499
Interior Details
Exterior Features
- Architectural
- Shingle
Parking And Garage
- Attached
- Garage
Dwelling And Structure
- New Construction
- Never Occupied
Basement And Foundation
- None
- Crawl Space
Square Footage And Levels
This information is deemed reliable, but not guaranteed. Neither, the Western Upstate Association of REALTORS®, Inc. or Western Upstate Multiple Listing Service of South Carolina Inc., nor the listing broker, nor their agents or subagents are responsible for the accuracy of the information. The buyer is responsible for verifying all information. This information is provided by the Western Upstate Association of REALTORS®, Inc. and Western Upstate Multiple Listing Service of South Carolina, Inc. for use by its members and is not intended for the use for any other purpose. Information is provided for consumers' personal, non-commercial use, and may not be used for any purpose other than the identification of potential properties for purchase. The data relating to real estate for sale on this Web site comes in part from the Broker Reciprocity Program of the Western Upstate Association of REALTORS®, Inc. and the Western Upstate Multiple Listing Service, Inc.
