
Timberland Grove
$649k




View All12 Photos

Timberland Grove
12
$649k
.69 Acre LotCovered Back DeckQuartz Countertops
Expansive 4 Bed Anderson Home | .69 Acre Wooded Lot Near Lake Hartwell
Timberland Grove
.69 Acre LotCovered Back DeckQuartz Countertops
1108 Manse Jolly Road, Anderson, SC 29621
$649,000
$649,000
202 views
20 saves
Does this home feel like a match?
Let us know — it helps us curate better suggestions for you.
Property Highlights
Bedrooms
4
Bathrooms
3
Living Area
3,578 SqFt
Property Details
.69 Acre LotCovered Back DeckQuartz Countertops
Lake Hartwell! .69 Acre Homesite!
Time on Site
3 months ago
Property Type
Residential
Year Built
2025
Lot Size
27,878 SqFt
Price/Sq.Ft.
$181
HOA Fees
Request Info from Buyer's AgentProperty Details
Bedrooms:
4
Bathrooms:
3
Living Area:
3,578 SqFt
Total Building Area:
3,578 SqFt
Property Sub-Type:
SingleFamilyResidence
Stories:
2
School Information
Elementary:
Mount Lebanon Elementary
Middle:
Riverside
High:
Pendleton
School assignments may change. Contact the school district to confirm.
Additional Information
Region
0
G
1
V
2
L
Agent Contacts
Request Showing
- Greenville: (864) 757-4000
- Simpsonville: (864) 881-2800
Listing Courtesy Of
Carson Bohannon of Mungo Homes Properties, LLC
Community & H O A
H O A
Y
Additional Fees
- HOA Mgmt Transfer Fee
- Cap Contr./Perpetual Fee
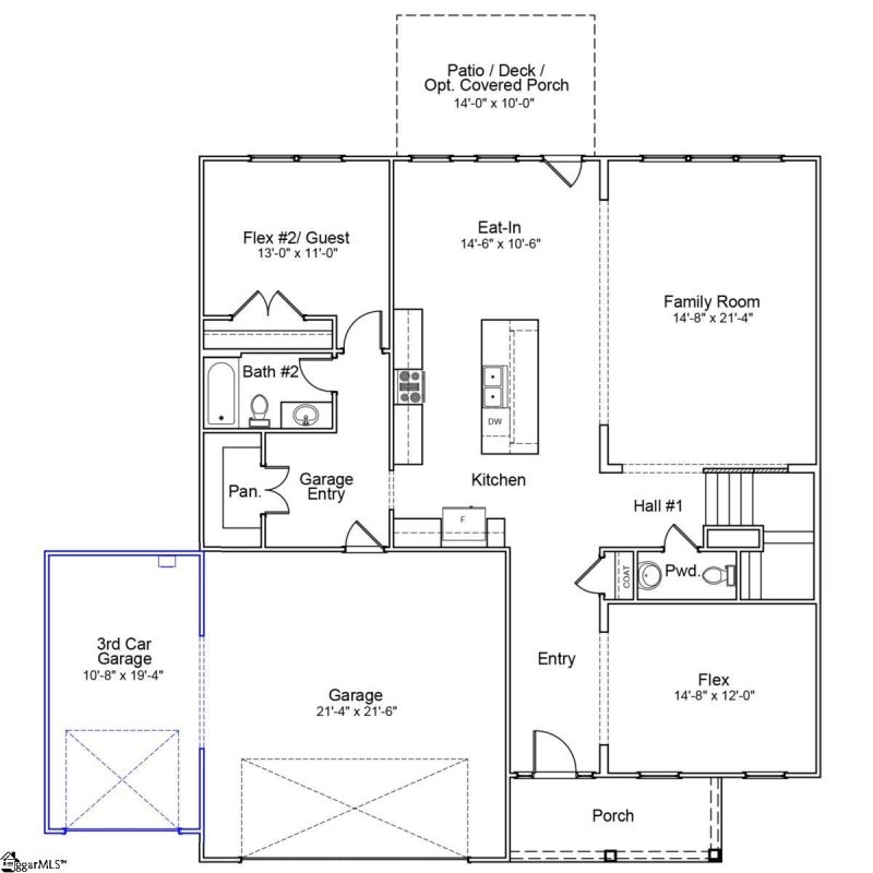
Room Dimensions
Kitchen Size
14X12
Bedroom #2 Size
15X12
Bedroom #3 Size
15X12
Bedroom #4 Size
13X11
Great Room Size
14X21
Dining Room Size
14X12
Breakfast Room Size
14X10
Primary Bedroom Size
21X16
Property Details
County
Anderson
Roof Type
Architectural
Foundation
Crawl Space
Home Style
- Traditional
- Craftsman
Tax I D Number
1200002003
Lot Description
- Some Trees
- Wooded
Lot Size Description
1/2 - Acre
Square Footage Range
3400-3599
Special Features
Lake Property Features
Interior Lot
Exterior Features
Driveway
Paved Concrete
Exterior Finish
Vinyl Siding
Exterior Features
- Porch-Front
- Tilt Out Windows
- Windows-Insulated
- Under Ground Irrigation
Interior Features
Laundry
- Sink
- 2nd Floor
- Walk-in
- Dryer – Electric Hookup
- Washer Connection
Flooring
- Carpet
- Ceramic Tile
- Luxury Vinyl Tile/Plank
Appliances
- Cook Top-Gas
- Dishwasher
- Oven-Convection
- Double Oven
- Microwave-Built In
Storage Space
- Attic
- Garage
Specialty Rooms
- Laundry
- Loft
- Other/See Remarks
Interior Features
- Attic Stairs Disappearing
- Cable Available
- Ceiling 9ft+
- Ceiling Smooth
- Ceiling Trey
- Countertops-Solid Surface
- Open Floor Plan
- Smoke Detector
- Walk In Closet
- Ceiling – Coffered
- Countertops – Quartz
- Pantry – Walk In
Number Of Fireplaces
1
Systems & Utilities
Sewer
Septic
Water Heater
Tankless
Water Source
Public
Cooling System
Central Forced
Garbage Pickup
Private
Heating System
Natural Gas
Showing & Documentation
Documents On File
None
Showing Instructions
Call Listing Office/Agent
Documents Required With Offer
None
Lead- Based Paint Disclosure Required
No
Residential Property Disclosure Required
No
The information is being provided by Greater Greenville MLS. Information deemed reliable but not guaranteed. Information is provided for consumers' personal, non-commercial use, and may not be used for any purpose other than the identification of potential properties for purchase. Copyright 2025 Greater Greenville MLS. All Rights Reserved.