Sold on 9/4/2024 for $620,489





More Photos
708 Anderson Road, Greenville, SC 29601
$599,000
$599,000
Sale Summary
Sold above asking price • Extended time on market
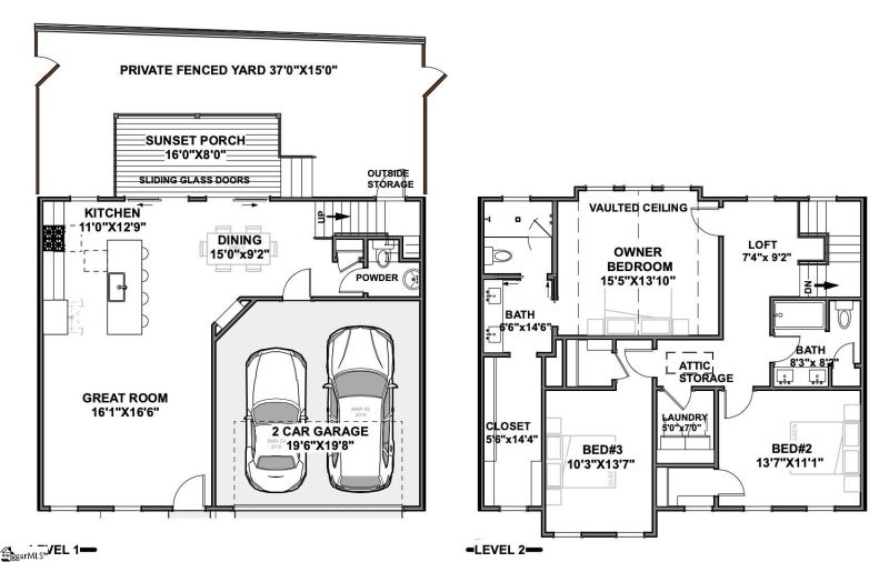
Bedrooms
3
Bathrooms
2
Living Area
1,865 SqFt
This property sold 1 year ago and is no longer available for purchase.
View active listings in Bohemian Cottages →Bohemian Cottages, “More House than Townhouse”, are located in the historic Sterling Community, within a 15 minute walk to Fluor Field and South Main Street in downtown Greenville, SC. With an abundance of windows and doors for great light, side by side 2 car garage, functional entertaining porch, private fenced back yard, this is not your typical townhouse! With 37 years of home building experience, we put our knowledge into practice with each project, and Bohemian Cottages is no exception.
Time on Site
2 years ago
Property Type
Residential
Year Built
2024
Lot Size
N/A
Price/Sq.Ft.
$321
HOA Fees
Request Info from Buyer's AgentThe information is being provided by Greater Greenville MLS. Information deemed reliable but not guaranteed. Information is provided for consumers' personal, non-commercial use, and may not be used for any purpose other than the identification of potential properties for purchase. Copyright 2025 Greater Greenville MLS. All Rights Reserved.